Restauration de la maison Duchesse Anne
LANDERNEAU
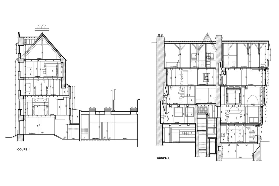
La maison Duchesse Anne de Landerneau est un immeuble datant de 1664, inscrit à l’inventaire supplémentaire des Monuments Historiques.
L’objectif de cette restauration est de retrouver le caractère originel de la construction dans le respect des choix de matériaux, dessins des menuiseries et organisation spatiale.
Le projet concerne la restauration de l’ensemble du bâtiment : façades, menuiseries extérieures, toitures, charpentes, planchers…
Le bâtiment est destiné à recevoir un espace commercial et du logement.
Maîtrise d’ouvrage
Particulier
Maîtrise d’oeuvre
Architecte : CALC – Collectif d’Architectes Léopold Canté
Lieu
LANDERNEAU
Avancement
Chantier en cours







