Extension d’une maison d’habitation
Morlaix
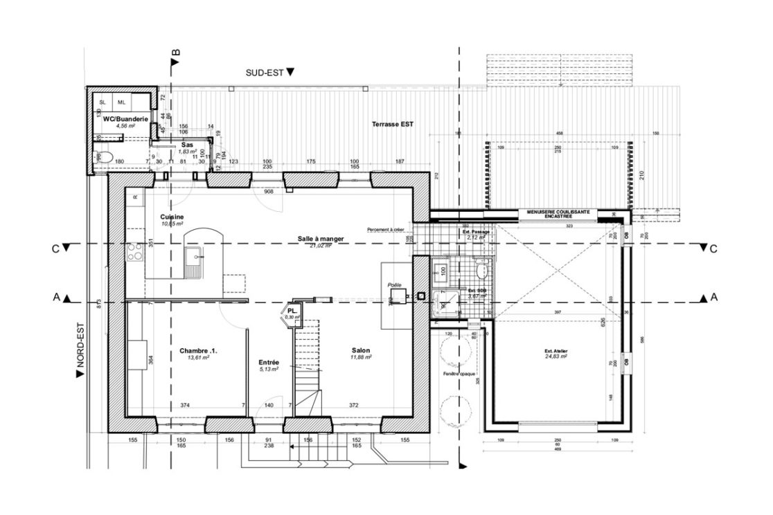
Extension d’une maison d’habitation à MORLAIX (29).
Cette habitation des années 30 propose des surfaces restreintes pour ses occupants. Le projet est de créer un volume épuré noir avec des surfaces modulables : bureau / atelier / chambre… Un lit en mezzanine complète le programme.
Une continuité du bardage et de la toiture forme un abri sur la terrasse.
Maîtrise d’ouvrage
Particulier
Maîtrise d’oeuvre
Architecte : CALC – Collectif d’Architectes Léopold Canté
Lieu
MORLAIX
Surface
25 m²
Avancement
Etudes en cours










